
Interventi di manutenzione straordinaria
L’edificio è sito in provincia di Biella ed è una casa unifamiliare. L’anno di costruzione è ante 1900 ed appare nelle mappe storiche del comune in cui sorge. Il comune ha imposto il seguente vincolo: “edifici e manufatti di origine rurale dotati di valore paesaggistico o documentario” ai sensi dell’art. 24 della L.R. 56/77.
INTERVENTI REALIZZATI:

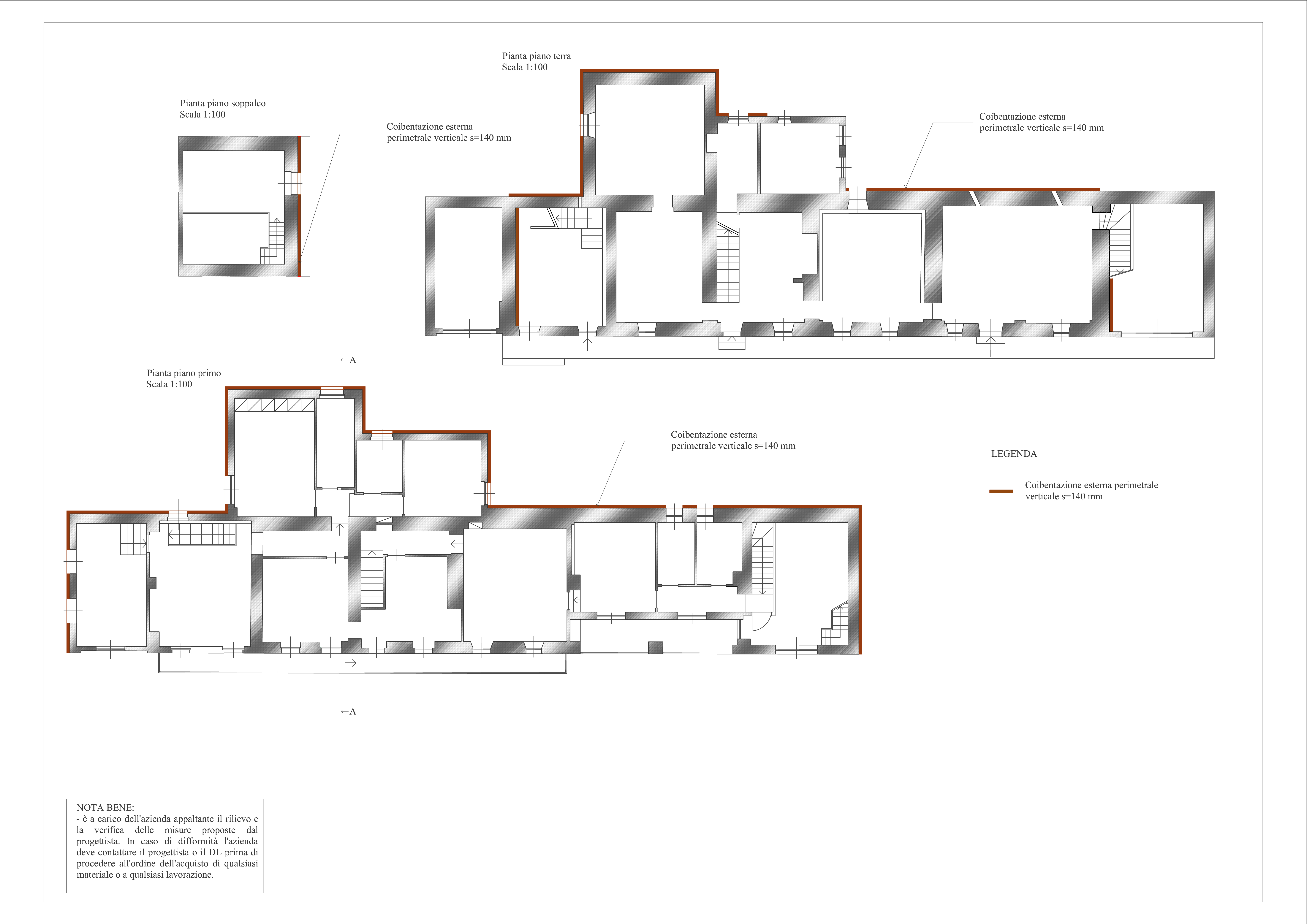
COIBENTAZIONE DELLE STRUTTURE OPACHE VERTICALI ED ORIZZONTALI
Sono state coibentate le strutture opache dell’edificio per una superficie totale maggiore al 25% rispetto alla superficie disperdente complessiva. Sono stati interessati Sono stati interessati i muri disperdenti perimetrali di una parte dell’edificio e il manto di copertura. Solo una piccola parte sarà coibentata dall’esterno e nello specifico le facciate secondarie, ossia quelle esteticamente più povere che non hanno i caratteri specifici della cascina. L’effetto visivo finale sarà effetto intonaco.
Gli spessori sono il valore minimo per raggiungere la trasmittanza richiesta dal decreto “Requisiti Tecnici” nell’ottica del super ecobonus 110%.
INSTALLAZIONE DI COLLETTORI SOLARI TERMICI
Sono stati installati n°4 pannelli solari, ad integrazione dell’energia termica prodotta dal generatore di calore. Sono installati sulla falda di tetto esposta nel modo migliore sotto il profilo dell’irraggiamento, con la medesima inclinazione in quanto integrati nella copertura. I pannelli sono del tipo piano, vetrati, ad altro rendimento. L’energia prodotta dai collettori è indirizzata all’integrazione della produzione di acqua calda sanitaria.

SOSTITUZIONE DEL GENERATORE DI CALORE
Il generatore di calore alimentato a gasolio è stato completamente eliminato, così come tutti gli organi di regolazione e gestione della temperatura in ambiente. Nel progetto trova spazio un nuovo generatore alimentato a biomassa, certificato in accordo ai dettami del decreto “Requisiti Tecnici”. La zona non è metanizzata.
La potenza è della macchina è pari a 30kW, circa la metà della caldaia sostituita, grazie agli interventi di contenimento energetico.

SOSTITUZIONE DI ALCUNI SERRAMENTI
Sono state sostituite le porte d’ingresso delle unità immobiliari e saranno in legno con coloritura analoga di quelli esistenti. Trasmittanza termica degli infissi nel rispetto della normativa vigente.

BUILDING AUTOMATION
Trattasi di tecnologia che afferisce almeno alla classe B della norma EN 15232 e consente la gestione automatica personalizzata degli impianti di riscaldamento e/o produzione di acqua calda sanitaria in maniera idonea a:
a) mostrare attraverso canali multimediali i consumi energetici mediante la fornitura periodica dei dati. La misurazione dei consumi può avvenire anche in maniera indiretta anche con la possibilità di utilizzare i dati atri sistemi di misurazione installati nell’impianto purché funzionanti;
b) mostrare le condizioni di funzionamento correnti e la temperatura di regolazione degli impianti;
c) consentire l’accensione, lo spegnimento e la programmazione settimanale degli impianti da remoto.
Il progetto prevede l’installazione di valvole termostatiche “intelligenti”, che colloquiano in modo wireless con un sistema centralizzato di acquisizione e raccolta dati, oltre ad un sistema di gestione della centrale termica gestibile in sito e da remoto.
Cliente:
Committente privato
Importo dei lavori:
425k€
Categoria del lavoro
Civile, Privato, Qualificazione Energetica






Alcuni elaborati di progetto



