
Descrizione:
LAVORI IN CENTRALE TERMICA PER AZIENDA TESSILE
Interventi in progetto
Descrizione impianti da realizzare
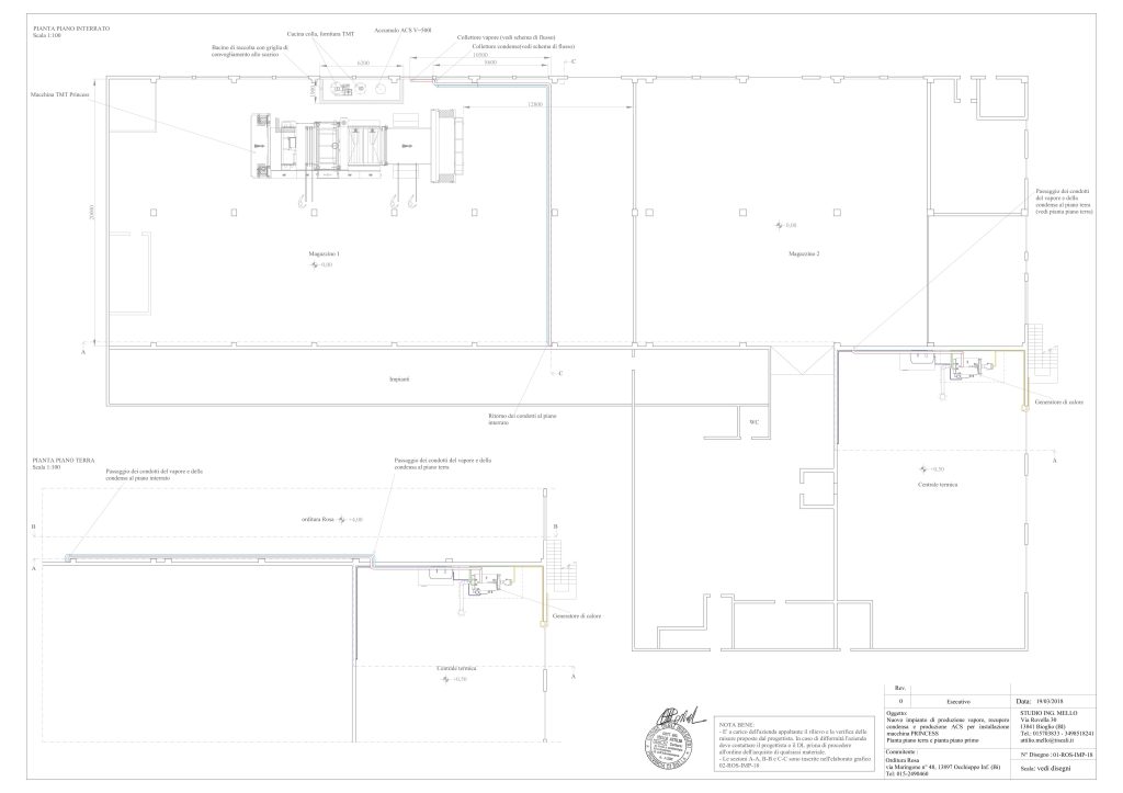
Produzione e distribuzione vapore
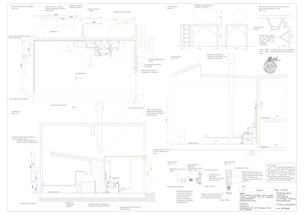
La macchina richiede vapore saturo per il suo funzionamento. La generazione del termofluido è affidata a nuova caldaia da installare CT, pressione di bollo 12 Bar, alimentata a gas metano di rete, esenzione da conduttore patentato per 72 ore. Lo scenario aziendale precedente prevedeva più generatori termici installati per usi tecnologici tessili: pertanto sono presenti molte pertinenze che devono essere “riutilizzate” per questa nuova installazione. Nel dettaglio:
La distribuzione del termofluido avviene con linea DN50 stessa pressione della caldaia fino al sistema di riduzione della pressione vapore nelle strette vicinanze della macchina tessile. Il vapore è poi distribuito alle utenze alla pressione ridotta di 3 Bar: macchina tessile, cucina colla, produzione ACS. Le condense sono raccolte grazie ai sistemi di recupero (scaricatori), in parte già a bordo macchina (e dunque non oggetto di nuova fornitura) ed in parte di nuova fornitura, per essere condotte nel serbatoio di alimentazione della caldaia in CT con linea dedicata DN40. Entrambe le linee sono previste coibentate. Sono previsti punti fissi e compensatori di dilatazione. L’esecuzione delle forometrie per l’attraversamento di pareti/solai è in capo all’azienda idraulica affidataria.
Linea gas
Il condotto del gas è di nuova fornitura e posa fino ad intercettare, con le dovute modifiche, il condotto esistente in quota già in CT. E’ previsto scarico della linea in caso di attivazione del sistema di rilevamento ed allarme. Si noti che è previsto un contatore (quantometro) volumetrico del gas utilizzato, in quanto l’azienda deve rilevare in modo diretto il combustibile utilizzato per la propria caldaia. Il lavoro, di fatto, ha luogo quasi solo nel locale CT.
Ciclo dell’acqua
Come già come in premessa, il progetto esclude il collegamento per la fornitura idrica fino alla zona impianti della macchina tessile, così come il sistema di scarico. E’ invece inserito il ciclo dell’acqua in CT, in quanto progettato espressamente per le caratteristiche chimico fisiche ed organolettiche del fluido in alimento. Realizzato il nuovo stacco dal condotto individuato, si prevede linea DN40 per ridursi al DN32 nei pressi del sistema di addolcimento. Addolcita, l’acqua carica il serbatoio di raccolta che deve avere volume di carico di circa 800 litri, e deve essere coibentato. Il sistema di reintegro automatico è affidato ad elettrovalvola comandata da sistema elettronico resistivo a 2 sonde. Il serbatoio è posizionato in quota al fine di garantire il battente minimo richiesto dalla pompa di carico bordo caldaia alla temperatura di progetto, ed è previsto sfiato libero in atmosfera esterna.
Gli scarichi, NON in pressione, devono essere condotti fino i punti preesistenti già nelle vicinanze.
Evacuazione fluidi in aspirazione
La macchina operatrice prevede delle cappe aspiranti regolate e gestire dalla logica di funzionamento della stessa. E’ onere dell’azienda idraulica incaricata, invece, la raccolta ed il convogliamento di tali fluidi all’esterno dello stabilimento, così come appare sugli elaborati tecnici.
Ulteriore scarico in atmosfera proviene dalla cucina colla, con diametro assai minore, deve anch’esso essere convogliato.
Ulteriori collegamenti
Ulteriori collegamenti devono essere individuati tra la cucina colla e la macchina Princess. In pratica, oltre a quanto già chiarito per i collegamenti di alimentazione bordo macchina e cucina colla per vapore e condense, è necessario far riferimento al disegno del costruttore n° S1372: Linea WR – cucina colla – allacciamenti. Nel dettaglio, le linee tra la macchina e la cucina colla denominate:
devono essere intese facenti parte dell’opera. Per quanto in premessa, non sono citati il carico di acqua fredda e gli scarichi reparto produzione.
Cliente:
Azienda tessile
Importo dei lavori:
X€
Categoria del lavoro
Industriale, Vapore




