
Descrizione:
Nuova centrale termica presso il comune di Chiomonte
Descrizione stato di fatto
L’area oggetto di intervento interessa la frazione Frais del comune di Chiomonte.
Il progetto prevede la realizzazione di una rete di riscaldamento che in questa fase si immagina a servizio dei condomini REF, Nuovo Frais, Hermitage, della struttura a servizio dei campi da tennis ed eventualmente di altre utenze comunali limitrofe presenti nella frazione al momento non individuate.
Interventi in progetto
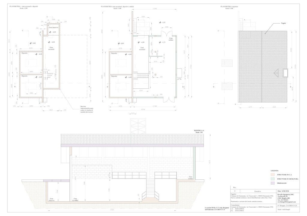
Centrale termica
La centrale termica a biomassa è collocata all’interno di un nuovo edificio, realizzato con caratteristiche architettoniche e dimensionali conformi alle prescrizioni degli strumenti regolatori vigenti e alle necessità dell’impianto.
L’edificio è costruito con sistema classico: strutture portanti in cemento armato, tamponamenti laterali in blocchi di cemento, tetto in tegole. La scelta di dettaglio esplicitata sugli elaborati tecnici garantisce la resistenza al fuoco imposta dalle normative antincendio. Le aperture di aerazione e la resistenza al fuoco sono quelle di legge.
All’interno del fabbricato della centrale termica sono installati:
• N. 2 caldaie alimentate a biomassa;
• Sistema di stoccaggio e movimentazione del combustibile;
• Accumuli termici;
• Impianto di trattamento acqua;
• Sistemi di controllo e gestione della generazione del calore con controllo remoto;
• Impianti ausiliari (elettrico, illuminazione, rilevamento antincendio).
L’accesso all’edificio della CT avviene da una strada praticamente già esistente, per il primo tratto a servizio della struttura dei campi da tennis. In corrispondenza del sito della CT e dei due serbatoi di cippato, il terreno è modellato per garantire lo spazio di manovra dei mezzi che trasportano il combustibile.
È previsto un nuovo allaccio all’acquedotto pubblico e una nuova fornitura di corrente elettrica.
Cliente:
Comune di Chiomonte
Importo dei lavori:
1 750 000 M€
Categoria del lavoro
Civile, Pubblico, Qualificazione Energetica
Alcuni elaborati di progetto



