
Descrizione:
Installazione nuova macchina produttiva presso tintoria tessile
Introduzione
La presente relazione tecnica è stata compilata ed emessa in applicazione del decreto ministeriale 1° Dicembre 2004 n. 329 applicativo dell’art. 19 del D.Lgs 93/2000, sull’esercizio delle attrezzature e degli insiemi a pressione di cui all’art. 3 del medesimo decreto ministeriale, e tiene conto delle modalità operative per gli accertamenti di cui le attrezzature CE installate ed agli insiemi a pressione assemblati dall’utilizzatore sull’impianto.
Descrizione dell’apparecchio
L’apparecchio è progettato per la tintura ed il candeggio di fibre tessili naturali o artificiali siano esse sotto forma di filati (in matasse) che confezionate quali calze, collant ed altri.
Dal punto di vista della temperatura / pressione di esercizio l’apparecchio è progettato per tinture che possono arrivare fino a temperature massime di 110°C al livello del mare – questi apparecchi hanno la camera di tintura chiusa. (pmax= 0,5Bar). Il termofluido è vapore di linea.
Funzionamento
I trattamenti di tintura e candeggio si basano su cicli di funzionamento composti da una serie di singole operazioni programmabili, ripetibili ed eseguibili sia automaticamente che manualmente quali:
– Riempimento macchina
– Riscaldamento del bagno di tintura
– Mantenimento della temperatura di processo
– Raffreddamento del bagno di tintura
– Introduzione coloranti e prodotti chimici
– Scarico macchina
– Lavaggio
– Campionatura
Il ciclo di tintura si svolge in modalità automatica con la possibilità di intervento manuale dell’operatore in determinate condizioni oppure in casi di emergenza.
Il funzionamento è coordinato e controllato da un microprocessore il quale oltre le funzioni elencate esegue anche l’autodiagnostica, emette allarmi e interviene in caso di malfunzionamenti.
Descrizione apparecchio con riferimento alla direttiva 97/23/ce (PED)
L’apparecchio di tintura AMRE , dal punto di vista della Direttiva 97/23/CE (PED) è un insieme composto da più attrezzature a pressione, quali:
– corpo macchina (camera di tintura)
– riscaldatore/raffreddatore di tipo RA * , montato nella camera di tintura
– riscaldatore di tipo RA * , montato nella camera di tintura (OPTIONAL)
– tubazioni del circuito di tintura
– tubazioni del circuito di riscaldamento /raffreddamento
e da:
– accessori di sicurezza : valvola di sicurezza sia per il corpo macchina che per la linea di adduzione del vapore
– accessori a pressione (manometro, termometro)
Il circuito di tintura (corpo macchina e tubazioni) è escluso dalla PED perché la pressione PS è < 0,5 Bar.
Il circuito di riscaldamento/raffreddamento 1 (riscaldatore/raffreddatore e tubazioni) certificato per una pressione PS=15 Bar, è classificato nella II categoria, Modulo A1 e il circuito di riscaldamento 2 è classificato nella I categoria, Modulo A.
Il circuito degli ausiliari (serbatoi, tubazioni, pompa) non è soggetto alla PED perché funzionante a pressione atmosferica.
Installazione
L’installazione delle attrezzature/insieme è stata eseguita in conformità a quanto indicato nel manuale d’uso fornito dal fabbricante;
Non viene richiesta a codesto Ente la verifica di primo impianto in quanto l‟apparecchio rientra nelle esclusioni previste nell’art art. 5 PUNTO D del Decreto Legislativo n° 329 1.12.2004 “esclusioni dalla verifica primo impianto per gli insiemi”
Inoltre il Ministero delle Attività Produttive (ufficio FO2 – Normazione Tecnica) in data 29/11/2005 informa circa le esclusioni contenute nella risposta data alla Commissione Europea:
“Si conferma l’applicazione delle disposizioni del paragrafo 1 dell‟art.4 del D.M. 329 in congruenza con quanto precisato con la nota del 28 dicembre 2004 e con la comunicazione del 21 dicembre 2004 : “ per gli insiemi assemblati dal Fabbricante, nessuna verifica di primo impianto ( o controllo messa in servizio), viene richiesta compresi eventuali controlli aggiuntivi dei dispositivi di sicurezza“.
Cliente:
Tintoria tessile industriale
Importo dei lavori:
250 K€
Categoria del lavoro
Industriale
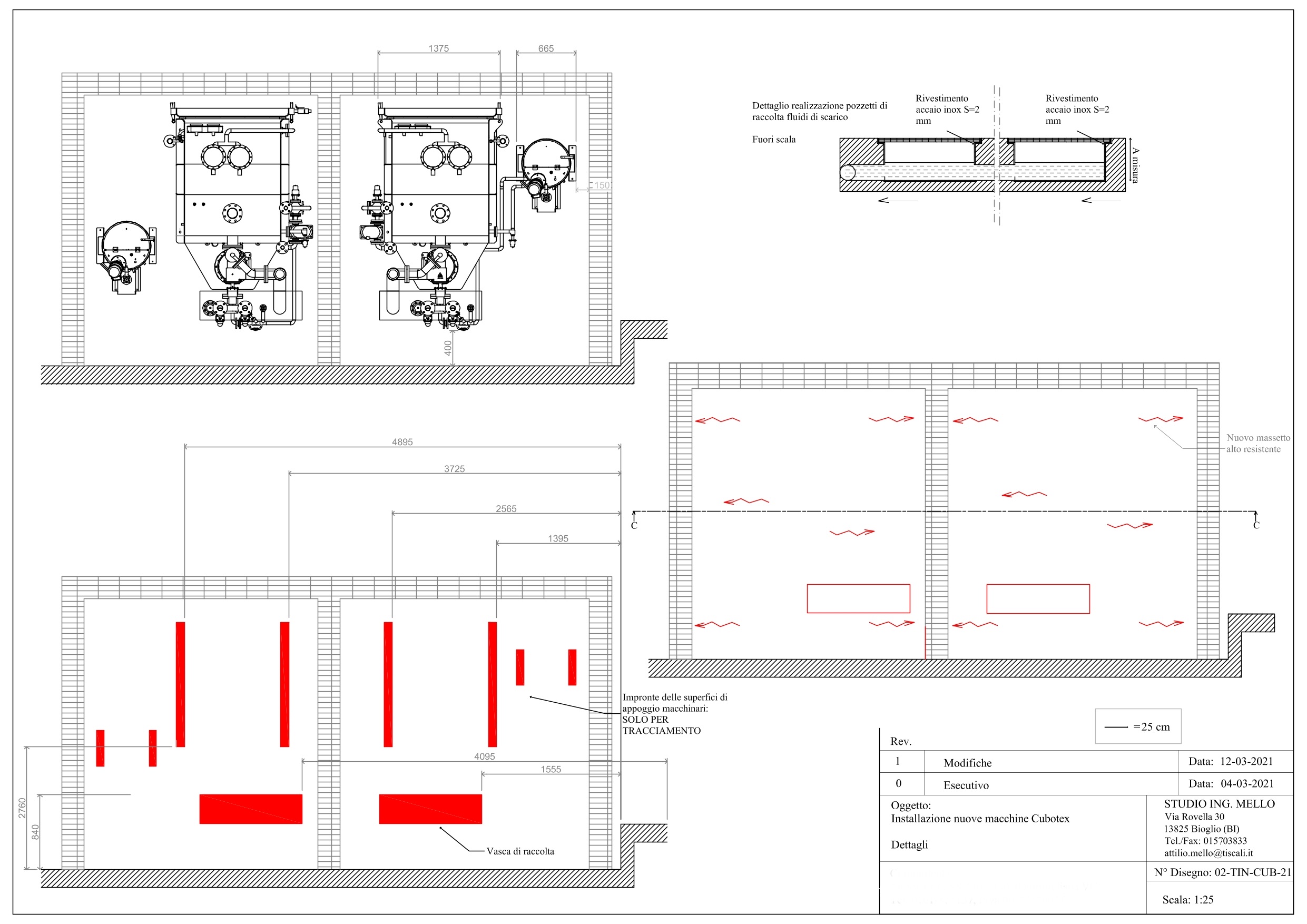
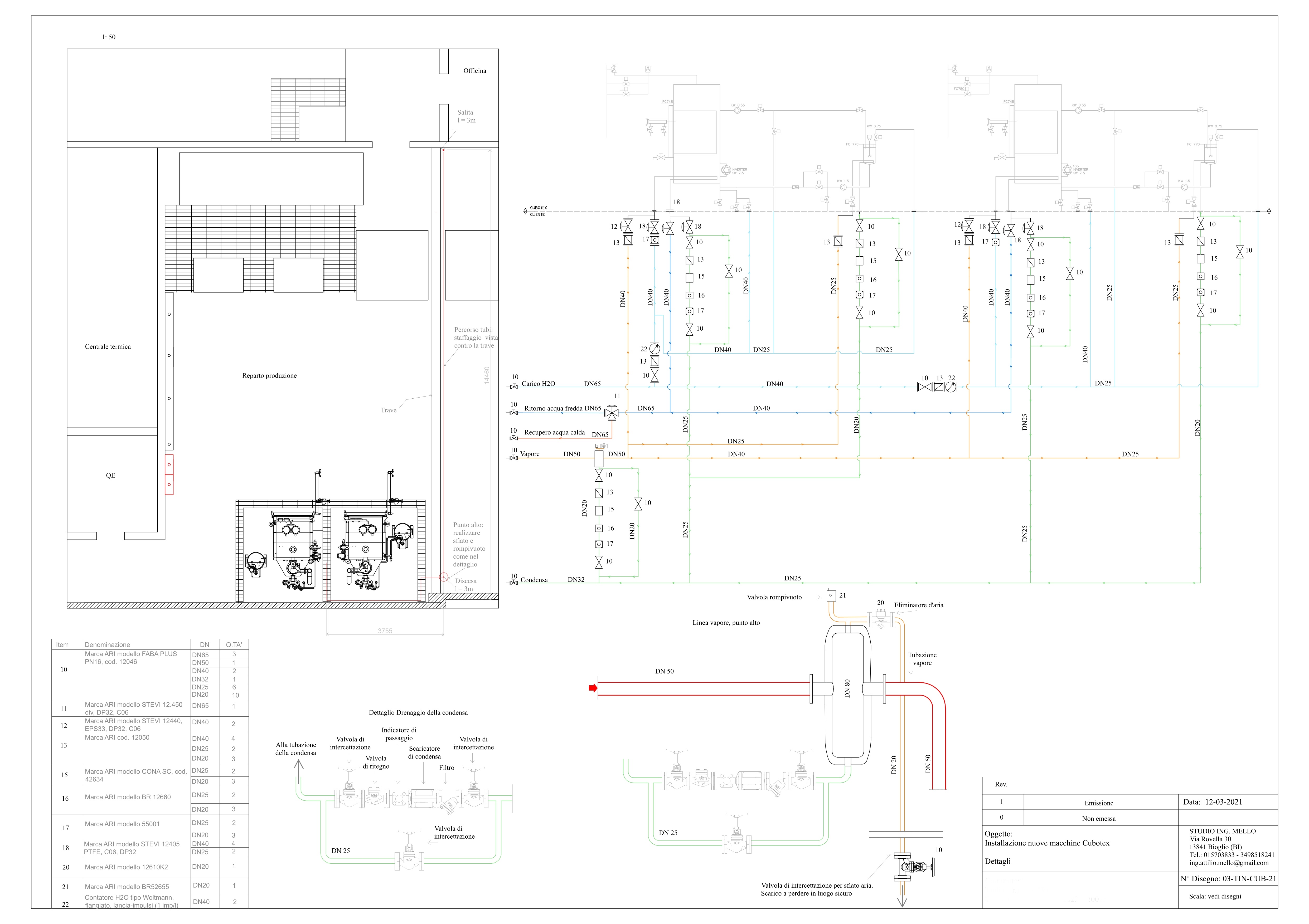
Alcuni elaborati di progetto



